


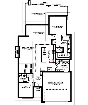
Complete Features:
- 36’9″ x 58’11” overall dimensions
- 1471 sq.ft. main floor with 9′ vaulted ceilings
- 1 bedroom, a den, and 1 1/2 baths
- Open concept living
- vaulted ceilings throughout main floor
- 1186 sq.ft. finished, 202 sq.ft. unfinished basement with 9′ ceilings
- Rec room, 3 bedrooms, and 1 bath finished in the basement.
Download This Plan
Other Plans
- Website
- View website
This prairie styled bungalow features 2 bedroom and 2 baths, open concept living, and raised 11’ ceilings in living area. Plan Code: B163- Website
- View website
This stucco styled bungalow features 2 bedrooms, a den, and 2 1/2 baths, open concept living, raised 11′ ceilings throughout living area, large covered deck, oversided double garage,and rental… Plan Code: B193- Website
- View website
This bungalow features 1 bedroom, a den, and 1 1/2 baths, open concept living, raised 11’ ceilings in great room, porch foyer,and rear covered deck, walk-thru pantry, and large covered… Plan Code: B174
Build With Experienced Professionals
Let our experienced home builders bring your dream home to life without the need for other contractors.



