


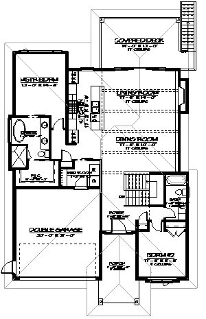
Complete Features:
- 39’6″ x 54’0″ overall dimensions
 - 1561 sq.ft. main floor with 9′ & 11′ ceilings
 - 2 bedrooms and 2 baths
 - Open concept living
 
- Raised 11′ ceilings in the great room, dining room, foyer and rear covered deck
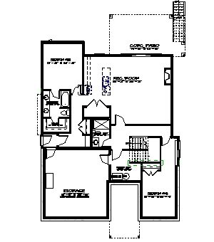
 - 1392 sq.ft. finished basement with 9′ ceilings
 - Suspended slab under garage
 - Rec room, 2 bedrooms and 2 baths finished in basement
 
Download This Plan
Other Plans
- Website
 - View website
 
A craftsman styled walk-out bungalow plan featuring raised 12’ ceilings in the foyer, great room, and rear deck, 2 bedrooms and 2 1/2 bath on the main, large walk in… Plan Code: B105- Website
 - View website
 
This bungalow features 1 bedroom and 1 1/2 baths, open concept living,vaulted ceilings in great room, dining, and kitchen, deck of master bedroom, and large covered porch. Plan Code: B160- Website
 - View website
 
A craftsman style bungalow plan designed with an open concept living area, 1 bedroom and 1 ½ baths, Den and parlour, covered porch and deck, 2 bedrooms and 1 bath… Plan Code: B120
Build With Experienced Professionals
Let our experienced home builders bring your dream home to life without the need for other contractors.



