


Complete Features:
- 44’0″ x 53’0″ overall dimensions
- 1736 sq.ft. main floor with 10′ ceilings
- 1 bedroom, a den, and 1 1/2 baths on the main floor
- Open concept living
- Wine room
- Vaulted entry
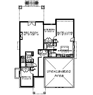
- 836 sq.ft. finished, 698 sq.ft. rental suite, 128 sq.ft. unfinished in basement with 9′ ceilings
- Rec room, 1 bedroom and 1 bath finished in the basement
- 1 bedroom rental suite finished
Download This Plan
Other Plans
- Website
- View website
This craftsman styled bungalow features 2 bedrooms, and 2 baths, open concept living, raised 11′ ceilings from entry to great room, semi-detached 3 car garage, retained pool area,and massive rear… Plan Code: B186- Website
- View website
This smaller two storey home is designed for a narrow lot and includes a basement daycare facility that could be easily altered to a home business or rental suite, 2… Plan Code: T110- Website
- View website
This rancher features 2 bedrooms, a den, and 3 baths, open concept living, 9' ceiling with raised 11'0" ceiling through foyer and great room, large rear covered deck, and exterior access bathroom for pool. Plan Code: B201
Build With Experienced Professionals
Let our experienced home builders bring your dream home to life without the need for other contractors.



