

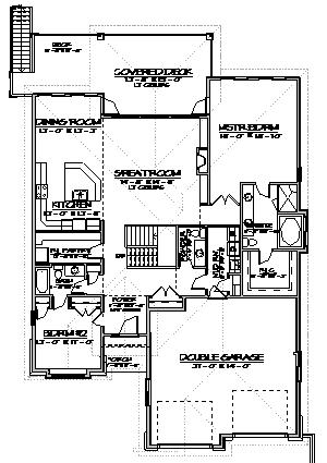
Complete Features:
- 49’0″ x 76’0″ overall dimensions
 - 2072 sq.ft. main floor with 9′ ceilings
 - 2 bedrooms and 2 1/2 baths
 - open concept living
 - raised 12′ ceiling in the great room, foyer and rear covered deck
 
- large walk in pantry
 - 1722 sq.ft. finished, 991 sq.ft. unfinished basement with 9′ ceiling
 - 3 bedrooms and 2 baths
 - bonus room under garage
 
Download This Plan
Other Plans
- Website
 - View website
 
This prairie styled bungalow features 1 bedroom, a den, and 2 baths, open concept living, raised 11′ ceilings in great room, foyer, front porch, and rear deck. Plan Code: B145- Website
 - View website
 
This award winning contemporary bungalow features a formal living and dining room with 1 bedroom and 1 ½ baths on the main, 3 bedrooms and 1 ½ baths down, high… Plan Code: B121- Website
 - View website
 
This modern styled bungalow features 3 bedroom and 2 1/2 baths, open concept living, raised 14’ ceilings in porch, foyer, great room, and rear patio, jack and jill bath between… Plan Code: B177
Build With Experienced Professionals
Let our experienced home builders bring your dream home to life without the need for other contractors.



