


Complete Features:
- 60’0″ x 66’0″ overall dimensions
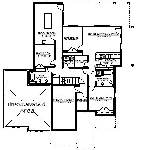
- 2188 sq.ft. main floor with 9′ & 11′ ceilings
- 2 bedrooms, a den, and 2 1/2 baths
- Open concept living
- Large covered deck
- Oversized double garage
- 1027 sq.ft. finished, 101 sq.ft. unfinished basement, and a 914 rental suite with 10′ ceilings
- Rec room, bedroom, bath, and media room finished in the basement
- 914 sq.ft. rental suite with 2 bedrooms
Download This Plan
Other Plans
- Website
- View website
This bungalow features 1 bedroom, a den, and 1 1/2 baths, open concept living, raised 11’ ceilings in great room, porch foyer,and rear covered deck, walk-thru pantry, and large covered… Plan Code: B174- Website
- View website
This modern styled two storey features an open concept design with 3 bedrooms, a den, and 2 1/2 baths, two storey foyer and great room, large covered patio, large deck… Plan Code: T153- Website
- View website
This accessible two storey home features 2 bedrooms and 2 1/2 baths, an elevator, art studio, large 1 car garage and rental suite. Plan Code: T137
Build With Experienced Professionals
Let our experienced home builders bring your dream home to life without the need for other contractors.



