

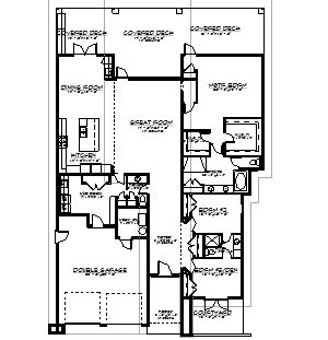
Complete Features:
- 86’10” x 57’1″ overall dimensions
- 53’6″ x 70’0″ overall dimensions
- 2575 sq.ft. main floor with 9′ & 14′ ceilings
- 3 bedrooms and 2 1/2 baths
- Open concept living
- Raised 14′ ceilings in the porch, foyer, great room, and rear covered patio
- Jack and Jill bath between secondary bedrooms
- Front courtyard
- Curb-less wet-zone shower in the ensuite
- massive covered rear patio
- Slab on grade foundation
Download This Plan
Other Plans
- Website
- View website
This modern styled walk-out bungalow features reversed open concept living on the lower level. Master suite on the lower level, two storey vaulted great room, large kitchen, extensive separate wet bar, large patio/pool area to the view, additional 3 bed and 2 abths upstairs. Plan Code: B199- Website
- View website
A craftsman styled walk-out bungalow plan featuring raised 12’ ceilings in the foyer, great room, and rear deck, 2 bedrooms and 2 1/2 bath on the main, large walk in… Plan Code: B105- Website
- View website
This bungalow features 1 bedroom and 1 1/2 baths, open concept living,vaulted ceilings in great room, dining, and kitchen, and large covered deck. Plan Code: B158
Build With Experienced Professionals
Let our experienced home builders bring your dream home to life without the need for other contractors.



