

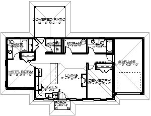
Complete Features:
- 53’6″ x 24’0″ overall dimensions
- 964 sq.ft. main floor with 9′ ceilings
- 2 bedroom and 2 bath
- Full laundry room
- Large covered patio
- Single car garage
Download This Plan
Other Plans
- Website
- View website
A craftsman styled 1 1/2 storey carriage homes that features 2 bedrooms and one and a half baths, and a carport. Plan Code: CH135- Website
- View website
This 963 sq.ft. carriage home contains 2 bedroom, and 1 1/2 baths. Plan Code: CH133- Website
- View website
This carriage home contains 2 bedroom and 2 bath, stacker washer and dryer hookups, and a single car garage. Plan Code: CH119
Build With Experienced Professionals
Let our experienced home builders bring your dream home to life without the need for other contractors.



