Two Storey – 2434 Sq.Ft. - Harmony Homes
Two Storey – 2434 Sq.Ft.

2434 Sq. Ft.

Two Storey – 2434 Sq.Ft.

5 Bedrooms

Two Storey – 2434 Sq.Ft.

2.5 Bathrooms

Two Storey – 2434 Sq.Ft.

2 Garages

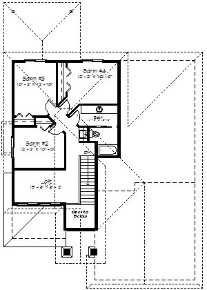
Complete Features:

  • 44’0″ x 65’0″ overall dimensions
  • 1633 sq.ft. main floor with 9′ ceilings
  • 801 sq.ft. upper floor with 8′ ceilings
  • 5 bedrooms and 2 1/2 baths
  • Open concept living
  • Large walk through pantry
  • Two storey foyer
  • Screened in deck
  • 1633 sq.ft. unfinished basement with 8′ ceilings

Download This Plan


    Other Plans

    Build With Experienced Professionals

    Let our experienced home builders bring your dream home to life without the need for other contractors.