Crystal View Two Storey - Harmony Homes
Crystal View Two Storey

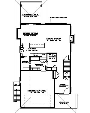
Plan Size 2192 sq. ft.

Crystal View Two Storey

3 Bedrooms

Crystal View Two Storey

Finished Basement 727 sq. ft.

Crystal View Two Storey

3.5 Bathrooms

Crystal View Two Storey

Suite Size 755 sq. ft.

Crystal View Two Storey

2 Garages

Complete Features:

  • 2192 sq.ft. Prairie Style 3 Bedroom and3 1/2 Bathrooms
  • 727 sq.ft. finished basement
  • 755 sq.ft. 1 bedroom renal suite
  • Main floor open concept Living, Kitchen, Dining with island, gas fireplace, and Walk-thru Pantry
  • 9’ ceiling heights to Basement and Main Floors, 8′ ceilings on Upper Floor
  • Double Car Garage fully finished with modern styled overhead garage door, opener, and adjoining Mud Room with built-in lockers
  • Two storey entry Foyer with open loft above
  • Private Master Balcony
  • Maintenance-free exterior with stucco siding, vinyl windows, and 30 year fiberglass shingles
  • Concrete driveway, patios, and sidewalks

Download This Plan


    Other Plans

    Build With Experienced Professionals

    Let our experienced home builders bring your dream home to life without the need for other contractors.