


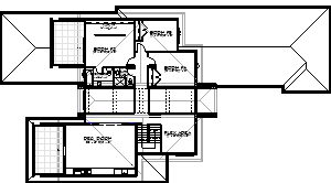
Complete Features:
- 54’0″ x 96’0′ overall dimensions
- 2476 sq.ft. main floor with 10′ ceilings
- 1512 sq.ft. upper floor with 9′ ceilings
- 4 bedrooms, a den, and 3 1/2 baths
- Open concept design
- Two storey Foyer and Dining Room
- Large covered patio
- 2 roof top decks
- 3 car side entry garage
- Slab on grade foundation
- feature open rise single stringer staircase
- Master Bedrrom on main floor
Download This Plan
Other Plans
- Website
- View website
A contemporary modern styled two storey plan that features 4 bedrooms, den, 5 1/2 baths, 2 master suites, expansive outdoor living, and three car garage. Plan Code: T139- Website
- View website
A Prairie style two storey home that features 4 bedrooms and 2 ½ bath on the main and upper floor, open concept plan, 3 car garage, 1 bedroom and 1… Plan Code: T158- Website
- View website
A craftsman style home that features an open living concept with 3 bedrooms and 2 ½ baths, 2 storey great room, laundry upstairs, large two car garage, large rear deck… Plan Code: CRYSTAL VIEW TWO STOREY
Build With Experienced Professionals
Let our experienced home builders bring your dream home to life without the need for other contractors.



